DLM architectes

45 av. Aristide Briand - 92120 Montrouge | Tél. +33 (0)1 41 17 49 69 | contact@dlmarchitectes.fr

Côteaux de l’Orge Viry-Châtillon (91) | 2015

Programme, Infos :
Financement: locatif social et accession, Nombre de logements: 61 + commerces, Mission complète
Statut :
réalisations
Me d'ouvrage :
SNI
Partenaires :
DL JOSSE (fluides), ECOBA (structure), EYZAT (paysagiste)
Surface :
SDP: 4 650 m²
Budget :
Coût des travaux: 6,7 M€ H.T
Calendrier :
Livré en 2015

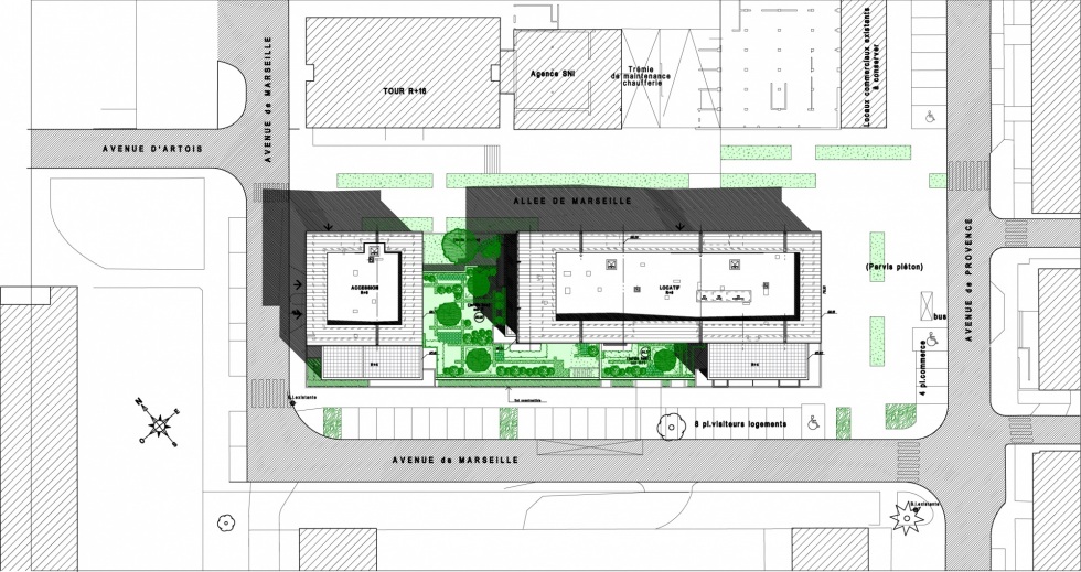
La dimension de l’îlot constructible et le programme demandé conduisent à une densité forte (COS net de l’ordre de 3) en sorte que l’emprise de 1590 m² est totalement bâtie : il s’agit bien, in fine, d’un « bâtiment îlot ».
Les étages courants se posent sur le volume général du socle qui donne forme aux espaces publics créés ou réaménagés.

Au-dessus de ce socle unitaire, le volume est fragmenté en deux bâtiments (accession sociale / locatif sociale) et se retraient côté sud pour favoriser l’ensoleillement du jardin sur dalle.

Les balcons tirés horizontalement sur trois étages successifs donnent la solidité et franchise nécessaire sur les espaces publics dans un quartier des années 60 aux volumétries très simples.

D’une façon générale, le bâtiment îlot se refuse à présenter le même aspect sur tout son pourtour et, en particulier, la façade très lisse et retenue côté Artois, s’oppose à une volumétrie et expression plus vivante côté jardin et soleil.